丹波島一丁目 土地

1,680万円

長野県長野市丹波島1丁目

信越本線「川中島」駅徒歩28分

価格
1,680万円
土地面積(坪数)
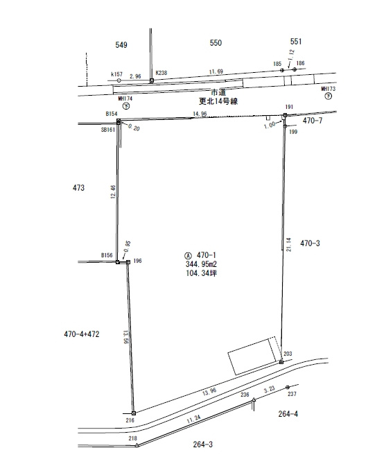
343.11㎡(103.79坪)
所在地
長野県長野市丹波島1丁目
築年
-(-)
駐車
-
交通

信越本線川中島」駅 徒歩28分

丹波島一丁目 土地の基本情報

物件名
丹波島一丁目 土地
価格
1,680万円
土地面積
343.11㎡
築年月
-(-)
総区画数
-
所在地
長野県長野市丹波島1丁目
交通

信越本線川中島」駅 徒歩28分

丹波島一丁目 土地の詳細情報

設備条件
設備(その他)
    【ガス】無
駐車場/月額
-/-
土地権利
所有権
国土法届出
不要
用途地域
第二種住居
区画数
- / -
管理形態
-
管理員の勤務形態
-
管理会社
-
取引態様
専任媒介
引渡し
相談

丹波島一丁目 土地で募集中の物件

  1. 103.79坪 (343.11㎡)

    1,680万円(16.19万円/坪)

周辺施設

  • 三本柳小学校の画像

    小学校

    三本柳小学校

    650m(9分)

  • 更北中学校の画像

    中学校

    更北中学校

    2700m(34分)

近隣の物件

  1. 長野市大字富竹

    - (158.10㎡)

    1,0998,000

  2. 長野市大字富竹

    - (164.31㎡)

    1,1431,000

  3. 長野市大字富竹

    - (174.53㎡)

    1,3725,000

  4. 長野市大字富竹

    - (151.59㎡)

    1,1921,000

丹波島一丁目 土地

お気軽にお問い合わせください

無料お問い合わせ

東邦商事株式会社

026-226-6634

09:30~18:00

(休:長野店:祝日 松本店・上田店:水曜・祝日 )